Rif: casa singola plurifamiliare con giardino
TERNI
TERNI - zona Valserra - Valnerina
Str. Di Valserra : interessante proprietà immobiliare costituita da una casa indipendente suddivisa in 3 soluzioni abitative di diversa metratura con giardino privato di 600 mq in una zona tipicamente residenziale che risulta ben collegata sia al centro cittadino che alla E45.
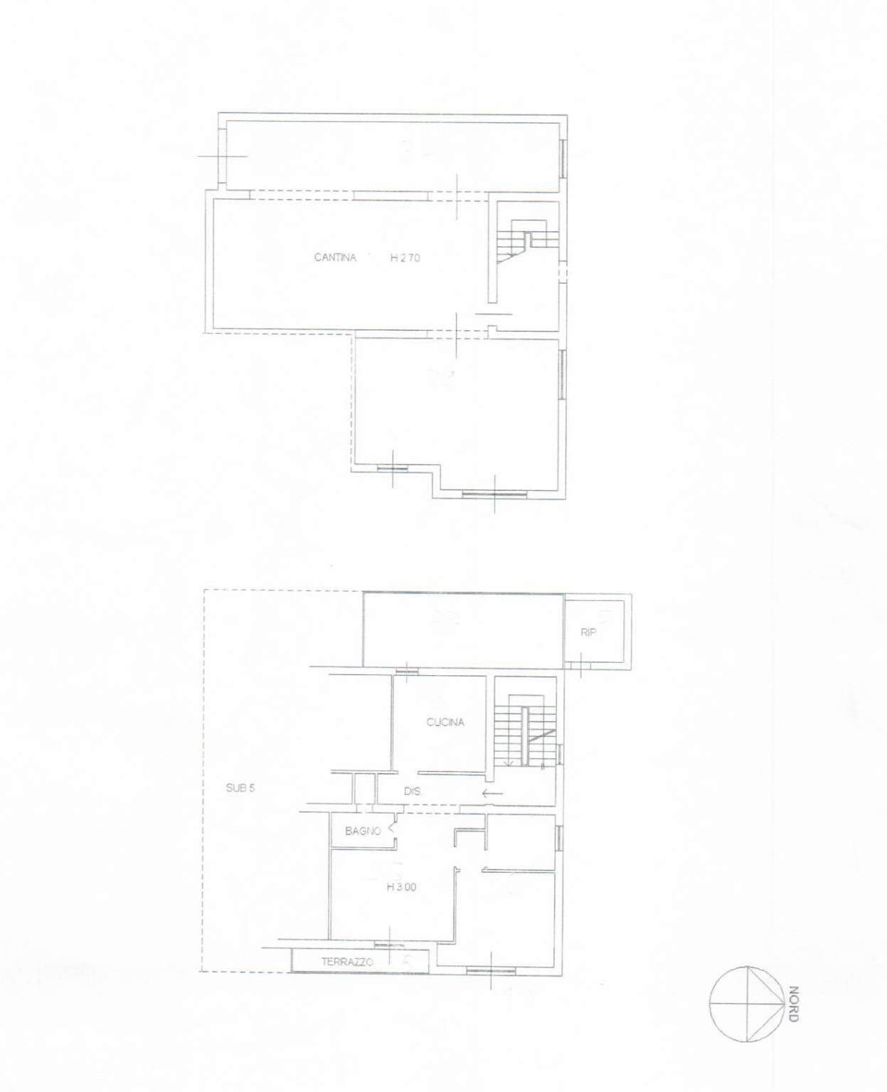
Date le importanti dimensioni, l'originaria superficie abitativa di 290 mq disposta ai piani terra e primo è stata rivisitata in base alle esigenze della proprietà ma risulta ancora rimodulabile sia nell'ottica di una abitazione unifamiliare di grande metratura che nell'ottica di 2 unità distinte così da accogliere in un unico stabile 2 nuclei familiari che cercano indipendenza, superfici importanti ed un ampio giardino. Lo stabile nel suo intero è in buono stato grazie ad interventi di ristrutturazione e ammodernamento avvenuti negli anni 90, successivamente è stata sempre assicurata una corretta manutenzione interna ed esterna che ha garantito la funzionalità dell'immobile. Il comodo accesso conduce all'ampia area di corte interamente pianeggiante che si estende sui 4 lati dell'edificio; il piano terra rialzato di 142 mq complessivi accoglie 2 abitazioni trilocale dotate di ampi terrazzi, mentre il 1° ed ultimo piano è interamente occupato dal terzo appartamento di 150 mq interni oltre al terrazzo abitabile, balconi e solarium. Il piano seminterrato di 120 mq risulta fruibile da tutti gli appartamenti che possono godere di una spaziosa taverna , utili cantine e di un ampio garage. Questa proprietà ha caratteristiche raramente reperibili sul mercato immobiliare locale e si rivela in grado di soddisfare un ampio ventaglio di esigenze abitative grazie alla sua eccezionale versatilità.
Date le importanti dimensioni, l'originaria superficie abitativa di 290 mq disposta ai piani terra e primo è stata rivisitata in base alle esigenze della proprietà ma risulta ancora rimodulabile sia nell'ottica di una abitazione unifamiliare di grande metratura che nell'ottica di 2 unità distinte così da accogliere in un unico stabile 2 nuclei familiari che cercano indipendenza, superfici importanti ed un ampio giardino. Lo stabile nel suo intero è in buono stato grazie ad interventi di ristrutturazione e ammodernamento avvenuti negli anni 90, successivamente è stata sempre assicurata una corretta manutenzione interna ed esterna che ha garantito la funzionalità dell'immobile. Il comodo accesso conduce all'ampia area di corte interamente pianeggiante che si estende sui 4 lati dell'edificio; il piano terra rialzato di 142 mq complessivi accoglie 2 abitazioni trilocale dotate di ampi terrazzi, mentre il 1° ed ultimo piano è interamente occupato dal terzo appartamento di 150 mq interni oltre al terrazzo abitabile, balconi e solarium. Il piano seminterrato di 120 mq risulta fruibile da tutti gli appartamenti che possono godere di una spaziosa taverna , utili cantine e di un ampio garage. Questa proprietà ha caratteristiche raramente reperibili sul mercato immobiliare locale e si rivela in grado di soddisfare un ampio ventaglio di esigenze abitative grazie alla sua eccezionale versatilità.
Consistenze
| Descrizione | Superficie | Sup. comm. |
|---|---|---|
| Principali | ||
| Immobile - piano rialzato | 142 Mq | 142 Mqc |
| Immobile - 1° piano | 150 Mq | 150 Mqc |
| Accessorie | ||
| Terrazza - piano rialzato | 54 Mq | 16 Mqc |
| Terrazza - 1° piano | 40 Mq | 12 Mqc |
| Terrazza - 2° piano | 25 Mq | 8 Mqc |
| Altro - seminterrato | 120 Mq | 60 Mqc |
| Giardino/Resede | 600 Mq | 60 Mqc |
| Totale | 448 Mqc | |








